Ribera de Cardós > ref. 2242
Amplia casa amb garatge i jardí a Vall de Cardós
195.000€
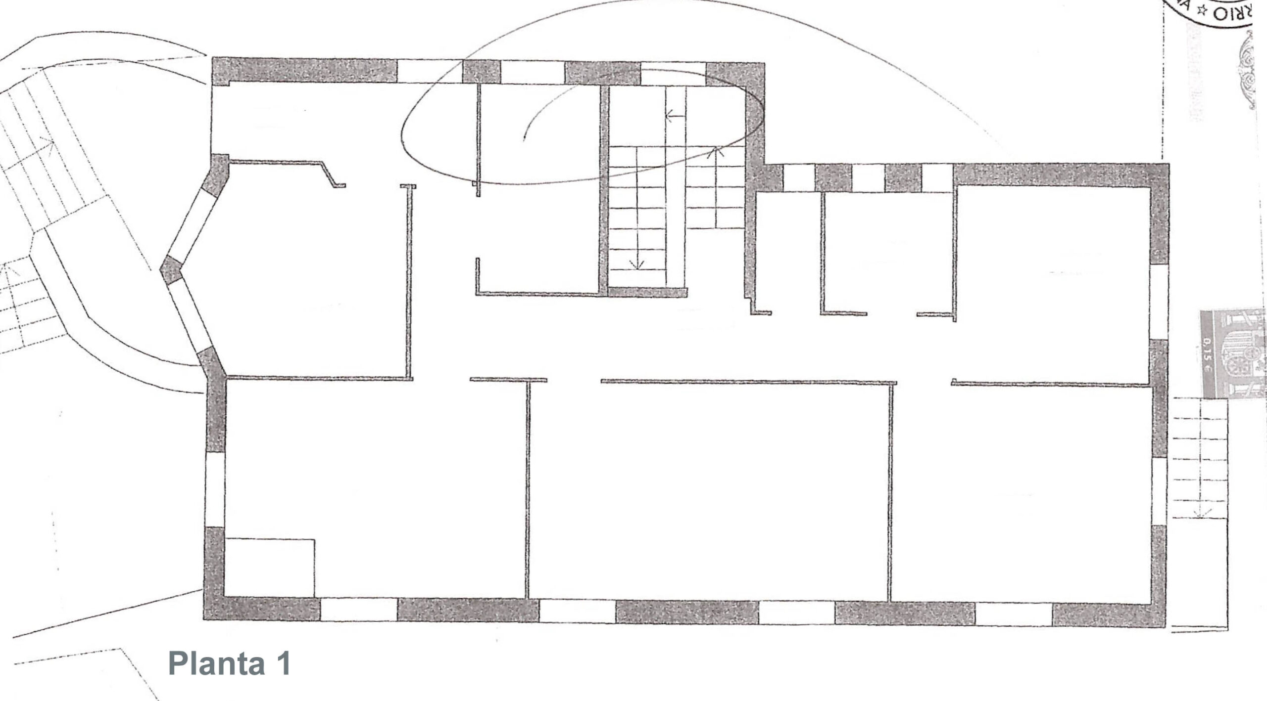
Es ven gran casa molt assolellada, amb garatge, jardí i molt bones vistes a la població de Ribera de Cardós, enmig del Parc Natural de l’Alt Pirineu. Disposa de 343 m² construïts, distribuïts en 3 plantes de 114 m² cadascuna. Tal com entrem a nivell de carrer, que és la planta primera, hi trobarem 4 habitacions, menjador, cuina independent, un bany complert i un lavabo. A planta segona i tenim 4 habitacions més, un lavabo, i una part de golfes amb accés a sotacoberta. A planta baixa hi tenim l’entrada de garatge, amb espai per a 2 vehicles, i un parell d’estances tipus rebost o despatx. A fora gaudirem d’un gran jardí de 785 m² orientat a sud, i de magnífiques vistes de la vall. Els interiors necessiten certa reforma però l’estructura es troba en bon estat. Situada a prop del riu i de numeroses rutes de senderisme i pistes d’esquí.
El preu no inclou impostos (ITP) ni despeses de notaria

Jardí 785 m2

3 banys

8 Dormitoris

Bones Vistes

Garatge

343 m² construïts

Assolellat

Traster

Llar de foc
Característiques
Orientació sud
Bon accés amb cotxe
Prop del Noguera de Cardós
Detalls de la propietat
| Tipus de finca | Casa amb jardí |
| Estat estructura | Bo |
| Dormitoris | 8 |
| Banys | 3 |
| Nombre de plantes | 3 |
| Superfície construïda | 343 m² |
| Superfície parcel·la | 900 m² |
| Superfície planta | 114 m² |
Informació sobre l’eficiència energètica
| Any de construcció | 1965 |
| Certificat energètic | Exempt |
Ubicació
Ribera de Cardós és una vila cap del terme municipal de Vall de Cardós, a la comarca del Pallars Sobirà. Es troba al fons de la Vall de Cardós, a la dreta de la Noguera de Cardós, en un indret on la vall s’eixampla considerablement entre la Serra d’Aurati, i la Serra de Niarte.
Compta amb la important església parroquial romànica de Santa Maria, en un indret a prop del riu que vol ser punt de trobada de tota la vall. En el poble hi ha les capelles de la Puríssima de Casa l’Apotecari i de Santa Llúcia de Casa Móra. Al nord de la vila hi ha també les restes de la capella de Sant Cristòfol.
Un altre element històric de la vila era el Castell de Ribera de Cardós, del qual romanen poques restes, en el turó que hi ha al nord, damunt de la vila. També es conserva, ara traslladada a la vila, la Creu de terme del Forat de Cardós, antigament situada a l’indret que el seu nom indica, punt d’entrada a la Vall de Cardós.
Poblacions d’interès properes són Tavascan, i Llavorsí.



















































