Isil > ref. 2095
Cobert a reformar a Alt Àneu
110.000€
En venda gran paller a rehabilitar en la seva totalitat a la població d’Isil, molt aprop de l’estació d’esquí de Baqueira.
Situat a la part alta de la població.
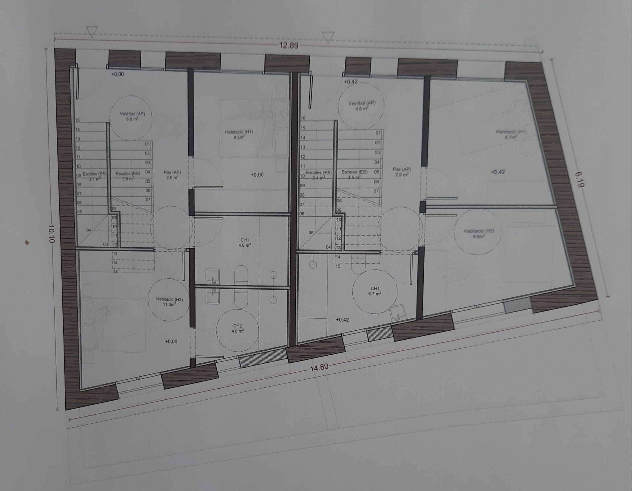
Disposa de projecte visat i llicència d’obra per a la construccio de les dues cases adosades de 160 i 140 mtr construccio + pati, així mateix hi ha un pressupost per la construcció de 112.000€ i 99.000€ respectivament, mes preu de solar corresponent, cadascun a 55.000€.
Bon accés amb cotxe.
El preu no inclou impostos (ITP) ni despeses de notaria

Assolellat

Bon accés

200 m2
Característiques
Parc Natural
A prop de pistes
Vistes a la muntanya
Orientació sud
Possibilitat de construïr dos habitatges
Detalls de la propietat
| Tipus de finca | Paller |
| Estat | A reformar |
| Nombre de plantes | 2 |
| Superfície construïda | 200 m² |
Informació sobre l’eficiència energètica
| Any de construcció | 1900 |
| Certificat energètic disponible | Exempt |
Ubicació
Isil és un poble del terme municipal d’Alt Àneu, a la comarca del Pallars Sobirà.
Està situat en el curs del Noguera Pallaresa, a totes dues riberes del riu. És a 1.163,4 metres d’altitud.
Isil té l’església parroquial de la Immaculada d’Isil, situada en una illa que forma la Noguera Pallaresa en dividir-se en dos braços, al costat nord de la Plaça de l’Església i al nord-oest de l’antiga Casa de la Vila, ara seu de l’Entitat Municipal Descentralitzada, que queda a l’esquerra del riu. Entre les cases del poble destaca Casa Sastres.
Molt a prop hi tenim les poblacions de València d’Àneu i Esterri d’Àneu, també l’estació d’esquí de Baquèira-Bonaigua, i la població d’Espot amb el Parc Nacional d’Aigüestortes i Estany de Sant Maurici al costat.
Informació cadastral



























